フレンチシックな部屋作りマンションフルリノベ
2LDKの賃貸マンションリフォーム。
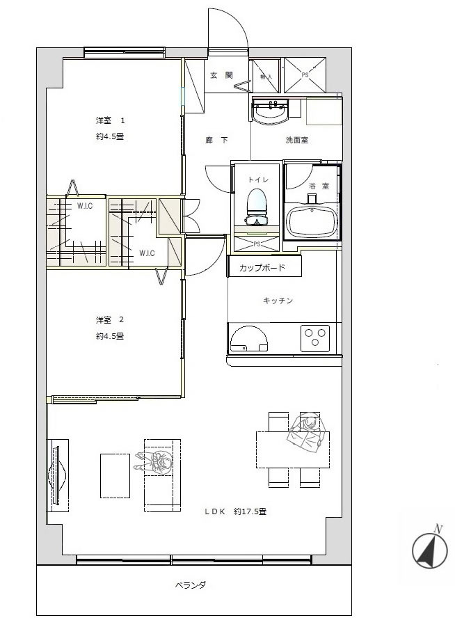
駅から遠く、古いマンションという悪条件が一転、近隣の相場の家賃より高めの設定でも即成約に至る人気物件へ 築35年 / 66.15m²
ブルーグレーの壁紙をアクセントに、カウンター付きの対面キッチンですっきり。

はじめからちょっとヴィンテージ仕様のグレーの床材。傷や補修跡が目立ちにくくなっていて賃貸向けです。
白いドアとブルーグレーの壁紙を貼り分け、真っ黒なアイアンの取っ手をアクセントに。

壁に釘を打てない賃貸マンション、カウンターや棚をはじめから取り付けました。
洗面室の入り口はあえて扉を付けず、カーテンをかけられるよう特注のアイアンバーを設置。

4.5畳の洋室は引き戸でリビングと緩やかに区切って、使い勝手抜群です。
キッチンはホワイトでまとめて。
玄関の灯りとり用に、洋室の壁にステンドグラスをはめ込みました。
和室と洋室に分かれていた窓、壁を取り去ったら広々した窓辺に。
リフォーム前の写真と図面